«Инвестжилстрой», как и планировал, с лета запустил коттеджную застройку в МКР-22Б. Разбита она на три этапа. В этом году стартовал первый.
«Инвестжилстрой» в этом проекте является инвестором-застройщиком. Компания «Инвестпром» — техзаказчиком. Первый этап включает в себя строительство 28 коттеджей двух типов.
Как пояснил представитель «Инвестпрома» Александр Левин, контракт на строительство был подписан 17 июня, а к настоящему моменту продолжается вертикальная планировка территории и идёт монтаж фундаментов первых четырёх домов. А также готовится площадка под «посадку» следующих трёх домов. По оценкам «Инвестжилстроя», всё идет в графике и без отставания.
28 коттеджей будут построены в рамках первого этапа застройки
- 10 домов — по 150 кв. м
- 18 домов — по 180 кв. м (с учётом площади кладовой и гаража).
Всего запланировано построить 76 коттеджей.

Коттедж тип 1. Фасад

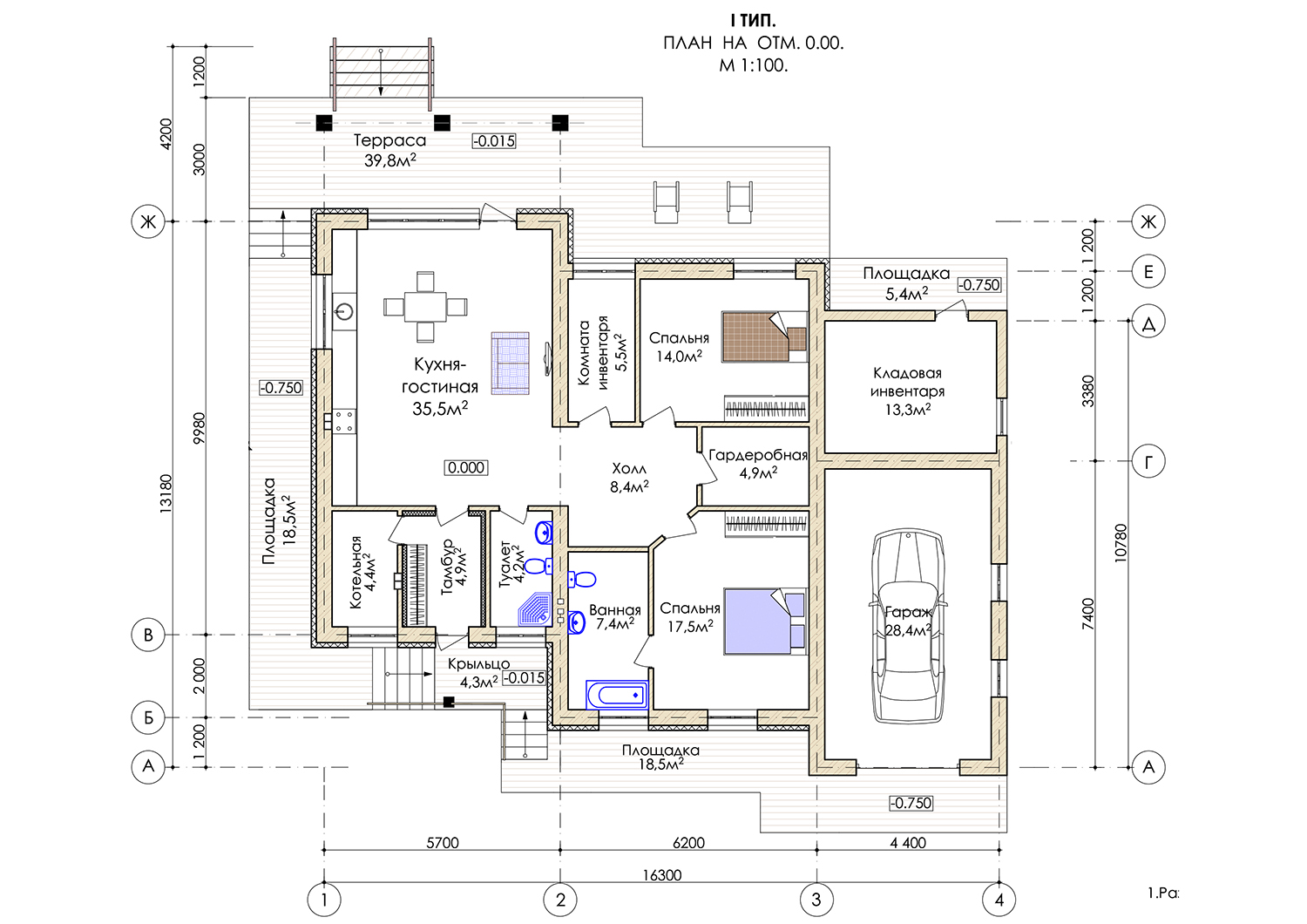
Коттедж тип 1. Планировка
Застройка ведется в соответствии со стратегией социально-экономического развития Новоуральского округа до 2035 года, в которой основной упор в жилищном строительстве делается на индивидуальные дома и малоэтажную застройку.
— По договору с администрацией округа, окончание первого этапа запланировано на середину 2028 года. Точнее, к концу 2027 года всё должно быть построено, после чего мы ещё примерно полгода отводим на оценку работ, устранение замечаний и приёмку, — подчеркнул директор «Инвестжилстроя» Никита Ванаев. — Добавлю, что все дома будут полностью благоустроены: водоснабжение, газ, электроэнергия.
Стоимость коттеджей пока не сформирована и станет понятна ближе к завершению первого этапа.
Все варианты коттеджей с планировками доступны по ссылке.






